НОВОСТИ   БИБЛИОТЕКА   КАРТА САЙТА   ССЫЛКИ   О ПРОЕКТЕ  






предыдущая главасодержаниеследующая глава

2. Агломерация

Агломерация - процесс искусственного окускования мелкозернистых и порошкообразных руд (в том числе и железных концентратов) путем спекания. Окускование порошкообразной железной руды и концентратов перед загрузкой в доменную печь технологически необходимо.

Хорошее измельчение и смешивание всех материалов, употребляемых в шихту перед агломерацией, является важным условием получения высококачественного агломерата.

Известняк измельчают в дробилках и затем просеивают на механических грохотах. Зерна известняка размером 0 - 3 мм направляют в шихту, а более крупные кусочки возвращаются на додрабливание.

Горючее - мелкий кокс и антрацитовый штыб - измельчают в валковых дробилках то же до 0 - 3 мм. После дробления известняк и топливо поступают в шихтовые бункера. В шихтовых бункерах хранят также агломерационную руду и концентрат. Шихтовые бункера в нижней части снабжены питателями, при помощи которых шихтовые материалы в определенных количествах выдаются на транспортеры, передающие шихту в корпус агломерации. Здесь перед тем, как попасть на агломерационную машину, шихта в смесительных устройствах (барабаны, шнеки) тщательно смешивается и увлажняется. Агломерату каждого вида соответствует определенный состав шихты.

Смешение и увлажнение шихты (содержание влаги обычно составляет 6 - 8%) необходимо для получения однородной, рыхлой и газопроницаемой массы. Газопроницаемость обеспечивается вследствие образования комочков при смешивании в барабане. Готовая шихта поступает на вибрационные грохоты для отсева кусочков размером более 10 мм, которые укладываются на колосниковую решетку спекательных тележек (так называемая постель) для предохранения ее от преждевременного износа. Это необходимо также для того, чтобы мелкая шихта не забивала зазоры между колосниками и не просыпалась через них. Постель состоит главным образом из возврата - мелкого агломерата, который отсеивается при разгрузке спекательных тележек.

В настоящее время агломерат получают на агломерационных машинах непрерывного действия в основном с площадью спекания 50 - 75 м2. Уже разработаны проекты и сооружаются агломерационные машины с площадью спекания 200 м2 и более1.

1(Мощность агломерационных машин определяется площадью, на которой происходит процесс спекания.)

Агломерационная машина представляет собой конвейер, состоящий из спекательных тележек (рис. 8), которые движутся по рельсам, закрепленным на металлоконструкциях. Скорость движения аглоленты составляет от 2,5 до 4,0 м/мин. Тележки приводятся в движение звездочным колесом от редуктора с шестеренной передачей и электроприводом.

Рис. 8. Агломерационная машина: 1 - зубчатое колесо; 2 - загрузочное утройство машины; 3 - горн; 4 - спекательные тележки; 5 - разгрузочная часть
Рис. 8. Агломерационная машина: 1 - зубчатое колесо; 2 - загрузочное утройство машины; 3 - горн; 4 - спекательные тележки; 5 - разгрузочная часть

С одной стороны движущегося конвейера происходит загрузка шихты в тележки и ее зажигание горном с горелками, в которых сжигается смесь доменного и коксового или природного газов. Температура зажигания равна 1200 - 1300°С.

Шихта укладывается на конвейер барабанными питателями равномерным слоем высотой 230 - 260 мм (рис. 9). Высота слоя шихты зависит от ее состава и газопроницаемости. Чем больше газопроницаемость шихты, тем больше ее слой и тем больше производительность агломерационной машины. За загрузочным устройством расположен зажигательный горн. При движении конвейера в результате разряжения, создаваемого под спекательными тележками, через слой зажженной шихты просасывается воздух, что необходимо для поддержания горения топлива в слое шихты. За счет тепла, выделяемого при горении топлива, протекает процесс агломерации.

Рис. 9. Загрузочное устройство агломерационной машины: 1 - спекательные тележки; 2 - загрузочный лоток; 3 - вибрационный грохот; 4 - подвески вибрационного грохота; 5 - барабанный питатель; 6 - бункер; 7 - шибер; 5 - маятниковый рукав
Рис. 9. Загрузочное устройство агломерационной машины: 1 - спекательные тележки; 2 - загрузочный лоток; 3 - вибрационный грохот; 4 - подвески вибрационного грохота; 5 - барабанный питатель; 6 - бункер; 7 - шибер; 5 - маятниковый рукав

На другой стороне агломерационной машины (хвостовой части) происходит непрерывная разгрузка тележек при их переходе на нижнюю ветвь конвейера. Длина агломерационной машины рассчитана так, чтобы к моменту поворота спекательных тележек вниз процесс агломерации шихты закончился. Готовый агломерат поступает с ленты в специальные охладительные устройства или горячим транспортируется в доменный цех.

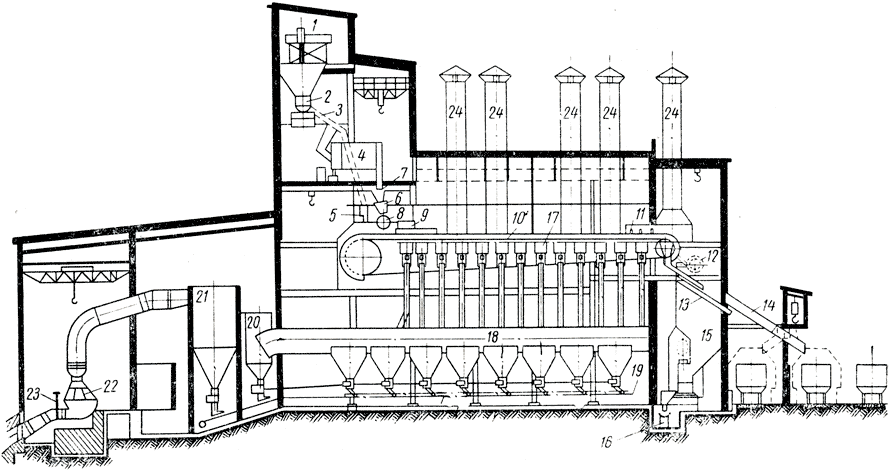
Отсасываемый газ попадает в камеры разряжения, затем через газопроводы в газоочистители и по газоходам выбрасывается эксгаустером (газососом) в дымовую трубу. Разряжение в камерах составляет 7840 - 10780 н/м2 (800 - 1100 мм вод. ст.). На рис. 10 показан продольный разрез агломерационного корпуса.

Процесс спекания агломерата протекает следующим образом. При воспламенении топлива в верхних слоях шихты образуются газы, нагретые до высокой температуры, которые просасываются через слой холодной шихты, отдают ей свое тепло и уходят в камеры разряжения. В результате прососа горячих газов шихта просушивается и слой горения перемещается сверху вниз. По мере приближения зоны горения топлива температура шихты повышается, происходит подготовка к воспламенению топлива и спеканию. В зависимости от расхода горючего возможно полное или частичное расплавление материала в зоне горения. Жидкие и полужидкие массы, охлаждаясь, образуют ноздреватый пористый спекшийся продукт - агломерат.

При агломерации из руды удаляется значительное количество серы, фосфор в агломератах остается полностью. Расход топлива составляет 5 - 7% по отношению к массе шихты.

При спекании железной руды с известняком и марганцевой рудой получают комплексный агломерат, проплавляемый на печах, которые производят передельный чугун с повышенным содержанием марганца.

Агломерат, полученный при совместном спекании железной руды (концентрата) и известняка, называется офлюсованным. В офлюсованном агломерате пустая порода SiО2 и Аl2О3 частично или полностью связана с СаО и MgO. Полностью офлюсованным считается такой агломерат, при котором из доменной шихты исключается весь сырой известняк.

В состав аглофабрики входят корпуса: приемных бункеров, дробления кокса, дробления известняка (на тех фабриках, где он используется в шихте), шихтовых бункеров и дозировочного отделения, отделения возврата (агломерационной мелочи), эксгаустеров. Все технологические корпуса (отделения) связаны между собой ленточными транспортерами для транспортировки сырья. Производственная взаимосвязь всех участков агломерационной фабрики представляет собой сложную технологическую систему.

Сырые материалы с рудного двора поступают в приемные бункера агломерационного цеха, откуда транспортерами они передаются в другие корпуса для дробления. Мелкую руду и концентрат направляют непосредственно в шихтовый бункер.

Рис. 10. Продольный разрез агломерационного корпуса: 1 - транпортер, подающий шихту; 2 - бунекер-воронка с тарельчатым питателем; 3 - грохот для выделения постели; 4 - смеситель; 5 - бункер для постели; 6 - бункер для шихты; 7 - маятниковый питатель; 8 - барабанный питатель; 9 - горн; 10 - аглолента; 11 - установка для охлаждения агломерата; 12 - дробилка агломерата; 13 - грохот возврата; 14 - перекидной желоб; 15 - бункер охлаждения возврата; 16 - транспортер для возврата; 17 - камеры разрежения; 18 - коллектор с пылевыми воронками; 19 - транспортер для сбора пыли из воронок; 20 - распределитель отходящих газов по мультициклонам; 21 - батарея мультициклонов; 22 - эксгаустер; 23 - газовая задвижка; 24 - вентиляционные трубы
Рис. 10. Продольный разрез агломерационного корпуса: 1 - транпортер, подающий шихту; 2 - бунекер-воронка с тарельчатым питателем; 3 - грохот для выделения постели; 4 - смеситель; 5 - бункер для постели; 6 - бункер для шихты; 7 - маятниковый питатель; 8 - барабанный питатель; 9 - горн; 10 - аглолента; 11 - установка для охлаждения агломерата; 12 - дробилка агломерата; 13 - грохот возврата; 14 - перекидной желоб; 15 - бункер охлаждения возврата; 16 - транспортер для возврата; 17 - камеры разрежения; 18 - коллектор с пылевыми воронками; 19 - транспортер для сбора пыли из воронок; 20 - распределитель отходящих газов по мультициклонам; 21 - батарея мультициклонов; 22 - эксгаустер; 23 - газовая задвижка; 24 - вентиляционные трубы

От качества готового агломерата зависят технико-экономические показатели работы доменных печей. Основные требования, предъявляемые к агломерату, состоят в следующем: достаточно высокое содержание железа, которое зависит от содержания железа в рудах; возможно меньшее количество вредных примесей; основность1, обеспечивающая полный вывод известняка из шихты доменных печей; возможно меньшее содержание закиси железа, образующейся в процессе спекания; постоянство химического состава и физико-химических свойств; минимальное количество мелочи фракции 0 - 5 мм и максимальная прочность. Агломерат должен быть однородным по кусковатости. В соответствии с этим требованием в настоящее время на некоторых заводах агломерат перед загрузкой в доменные печи подвергают грохочению. При этом отсеивают фракцию 0 - 5 мм.

1 (Основность материала - отношение суммы процентного содержания извести и магнезии к кремнезему .)

В табл. 8 приведены показатели качества агломерата, производимого на некоторых фабриках СССР. Качество агломерата контролируют по мере его производства. На каждом заводе существуют внутризаводские технические условия, в которых указаны показатели качества агломерата: прочность, содержание мелких и крупных фракций, содержание закиси железа, марганца, окиси кальция и кремнекислоты или их соотношение.

Таблица 8

Химический состав некоторых отечественных офлюсованных агломератов

Для определения относительной прочности агломерат испытывают в барабане. Диаметр барабана 1000 мм, ширина 600 мм. Внутри барабана находятся три полки, расположенные на равном расстоянии друг от друга. Для испытания берут пробу (куски крупнее 25 мм) агломерата массой 20 кг и загружают ее в барабан, после чего ему придают вращение. Испытание продолжается 4 мин, в течение которых барабан делает 100 оборотов, т. е. по 25 оборотов в минуту. После остановки барабана измельченный в нем агломерат рассеивают на ситах с отверстиями 5 и 12 мм. Количество фракций 0 - 5 мм и более 12 мм, выраженное в процентах к массе пробы, определяет прочность агломерата и называется барабанным числом. Чем больше мелочи фракции 0 - 5 мм, тем хуже качество агломерата. Необходимо отметить, что прочность офлюсованного агломерата ниже, чем неофлюсованного.

Восстановимость агломерата определяется по количеству кислорода, отнятого от окислов железа газом-восстановителем (водород, окись углерода) при температурах 700 - 800°С и отнесенного ко всему количеству кислорода во всех окислах железа. Восстановимость выражается в процентах и определяется в лабораторных установках. Чем больше содержится в агломерате закиси железа (FeO), тем хуже его восстановимость.

На ход процесса агломерации и качество агломерата оказывает влияние ряд факторов: тщательность смешивания, величина помола, увлажнения, газопроницаемость шихты, расход топлива и др. Неравномерное распределение топлива в агломерационной шихте приводит к неоднородному агломерату: наряду с хорошо спеченными кусками будут встречаться мало пропеченные или совсем не пропеченные участки. Неравномерное распределение извести в шихте приведет к неоднородному химическому составу и неравномерной прочности агломерата. Поэтому однородный по химическому составу и прочности агломерат может быть получен только при точной дозировке и при тщательном перемешивании шихты.

Газопроницаемость зависит в основном от крупности рудных зерен и степени окомкования шихты. При плохой газопроницаемости в зону горения не поступает требуемого количества воздуха, в результате чего не достигается температура, необходимая для образования расплава. В случае слишком плотной шихты горение топлива не может распространиться в глубь слоя, а закончится на поверхности. Агломерат в этом случае будет содержать много неспекшейся рудной мелочи.

Газопроницаемость зависит также от степени увлажнения шихты. При недостаточном количестве влаги окомкование материалов при их смешивании будет плохим, а газопроницаемость шихты низкой. Если же в шихту дать излишнее количество влаги, то образующиеся мелкие комочки шихты (которые способствуют лучшей газопроницаемости) могут разрушиться, а сконденсировавшаяся в нижней части слоя влага будет препятствовать просасыванию воздуха.

Газопроницаемость и влажность шихты влияют на расход топлива. Большое количество влаги в шихте вызывает повышенный расход топлива для ее испарения. При малом расходе горючего в агломерате будет содержаться меньше FeO. Такой агломерат хорошо восстановим, но мало прочен. Наоборот, при большом расходе топлива содержание FeO в агломерате возрастает, прочность его увеличивается, но восстановимость падает.

Работа доменных печей с высоким содержанием в шихте офлюсованного агломерата позволила увеличить производительность доменных печей примерно на 30% и снизить расход кокса более чем на 25% (по сравнению с работой печей на сырой руде).

В настоящее время по производству агломерата наша страна занимает первое место в мире. Производство его в 1966 г. превысило 100 млн. т.

предыдущая главасодержаниеследующая глава

SoKKoL - Каталог тут.








© METALLURGU.RU, 2010-2020
При использовании материалов сайта активная ссылка обязательна:
http://metallurgu.ru/ 'Библиотека по металлургии'
Рейтинг@Mail.ru
Поможем с курсовой, контрольной, дипломной
1500+ квалифицированных специалистов готовы вам помочь