НОВОСТИ   БИБЛИОТЕКА   КАРТА САЙТА   ССЫЛКИ   О ПРОЕКТЕ  






предыдущая главасодержаниеследующая глава

13. Подача шихты на колошник доменной печи

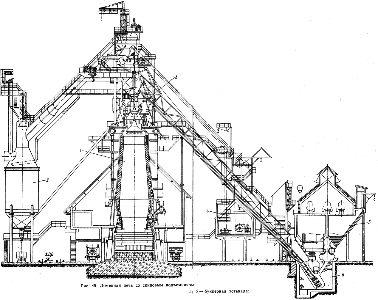
Типовым устройством для подъема шихтовых материалов на колошник в СССР является наклонный скиповой подъемник (рис. 49).

Рис. 49. Доменная печь со скиповым подъемником: 1 - доменная печь; 2 - пылеуловитель; 3 - колошник; 4 - машинный зал; 5 - бункерная эстакада; 6 - скиповая яма
Рис. 49. Доменная печь со скиповым подъемником: 1 - доменная печь; 2 - пылеуловитель; 3 - колошник; 4 - машинный зал; 5 - бункерная эстакада; 6 - скиповая яма

Все сырые материалы загружаются в скип вагон-весами, а кокс - воронкой-весами. На заводах, где не автоматизирована работа вагон-весов, скип загружают сырыми материалами и пускает его машинист вагон-весов. Вся остальная работа скипового подъемника (подъем скипа, изменение скорости его движения, остановка скипа, все операции по загрузке скипов коксом и их подъему) автоматизирована.

Когда один скип находится в крайнем нижнем положении, то он загружается. Второй скип, находящийся в это время в крайнем верхнем положении, разгружается в воронку засыпного аппарата. При движении груженого скипа вверх порожний скип опускается вниз.

Рис. 50. Скип
Рис. 50. Скип

Скип для подъема шихты (рис. 50) состоит из сварного кузова 1, передвигающегося на скатах 2. Кузов скипа соединен с канатом через упряжное устройство 3. Дно, нижняя и боковые стенки кузова внутри защищены броневыми плитами 4. Упряжное устройство состоит из двух тяг 5, вращающихся на подшипниках вокруг оси, которая закреплена на боковой стенке кузова. Спереди тяги соединены перекладинами, между которыми находятся балансирные рычаги. Упряжное устройство обеспечивает равное натяжение канатов, что обязательно при использовании двух канатов на каждом скипе. Равенство натяжения обеспечивает равномерную нагрузку на канаты. Для направления скиповых канатов установлены шкивы.

Рис. 51. Бункера и скиповая яма: 1 - шихтовый бункер; 2 - затвор шихтового бункера; 3 - вагон-весы; 4 - направляющая воронка для материалов, выгружаемых из вагон-весов; 5 - коксовый бункер; 6 - грохот; 7 - воронка-весы; 8 - скиповой подъемник коксовой мелочи; 9 - скиповый подъемник для загрузки шихтовых материалов в доменную печь; 10 - насосная установка для откачки воды из скиповой ямы
Рис. 51. Бункера и скиповая яма: 1 - шихтовый бункер; 2 - затвор шихтового бункера; 3 - вагон-весы; 4 - направляющая воронка для материалов, выгружаемых из вагон-весов; 5 - коксовый бункер; 6 - грохот; 7 - воронка-весы; 8 - скиповой подъемник коксовой мелочи; 9 - скиповый подъемник для загрузки шихтовых материалов в доменную печь; 10 - насосная установка для откачки воды из скиповой ямы

Емкость скипов зависит от полезного объема доменных печей:

Объем доменных печей, м3 1033 1386 - 1700 2000 - 2300 2700
Объем скипов, м3 . . . . . . . 6,5 10,5 13,5 17 - 20

В скиповой яме, где происходит загрузка скипов шихтой (рис. 51) находятся: коксовые весы с воронкой и затворами, затворы коксовых бункеров с грохотами для рассева кокса, пути для скипов с шихтой и коксовой мелочью, направляющая воронка для шихты, поступающей из вагон-весов в скипы.

Коксовые весы и воронка с затвором установлены у коксового грохота. Это оборудование служит для приема кокса после рассева, взвешивания заданной порции кокса и быстрой ее подачи в скип. Отверстие внизу коксовой воронки закрывается затворами шиберного типа. Затворы коксовых воронок, грохоты для рассева кокса, скипы коксовой мелочи работают автоматически.

Для удаления мелочи после рассева кокса служит скиповой подъемник коксовой мелочи, которая предварительно поступает в небольшой бункер, находящийся под грохотом.

Рис. 52. Схема потока кокса и коксовой мелочи в скиповой яме
Рис. 52. Схема потока кокса и коксовой мелочи в скиповой яме

На рис. 52 схематически показано расположение оборудования в скиповой яме, а также поток кокса и коксовой мелочи.

предыдущая главасодержаниеследующая глава








© METALLURGU.RU, 2010-2020
При использовании материалов сайта активная ссылка обязательна:
http://metallurgu.ru/ 'Библиотека по металлургии'
Рейтинг@Mail.ru
Поможем с курсовой, контрольной, дипломной
1500+ квалифицированных специалистов готовы вам помочь